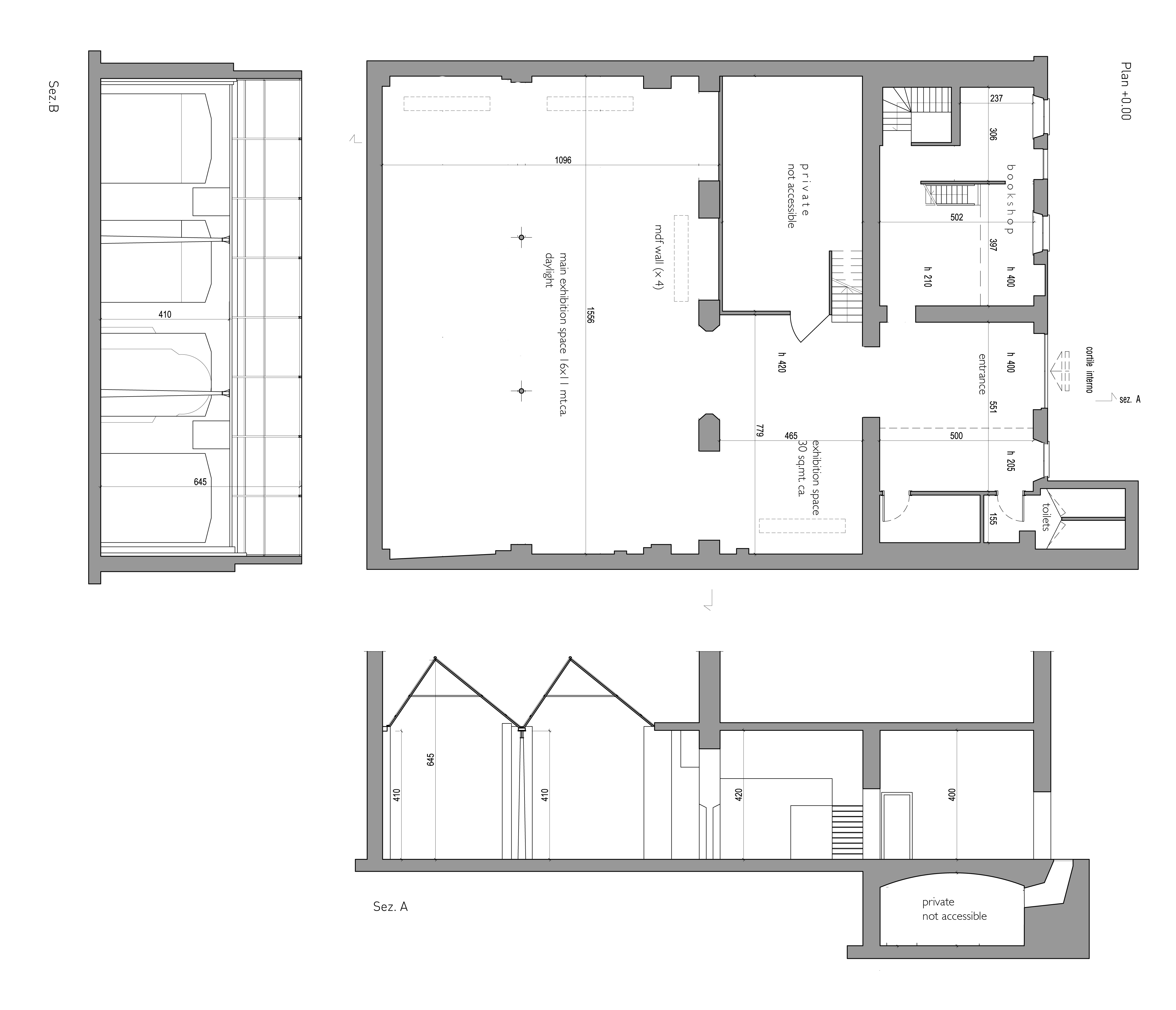
Typology:
Ambiente di lavoro, capannone, magazzino - Spazio eventi, museo, galleria
Area:
Milano
ZTL:
No
Location per:
Evento - Foto - Video
Dimensione:
300 mq
Piano:
terra
Accesso cinemobile:
No
KW:
6.6
Descrizione:
Ex industrial space reclaimed and now assigned to be gallery and events space.
Style:

























