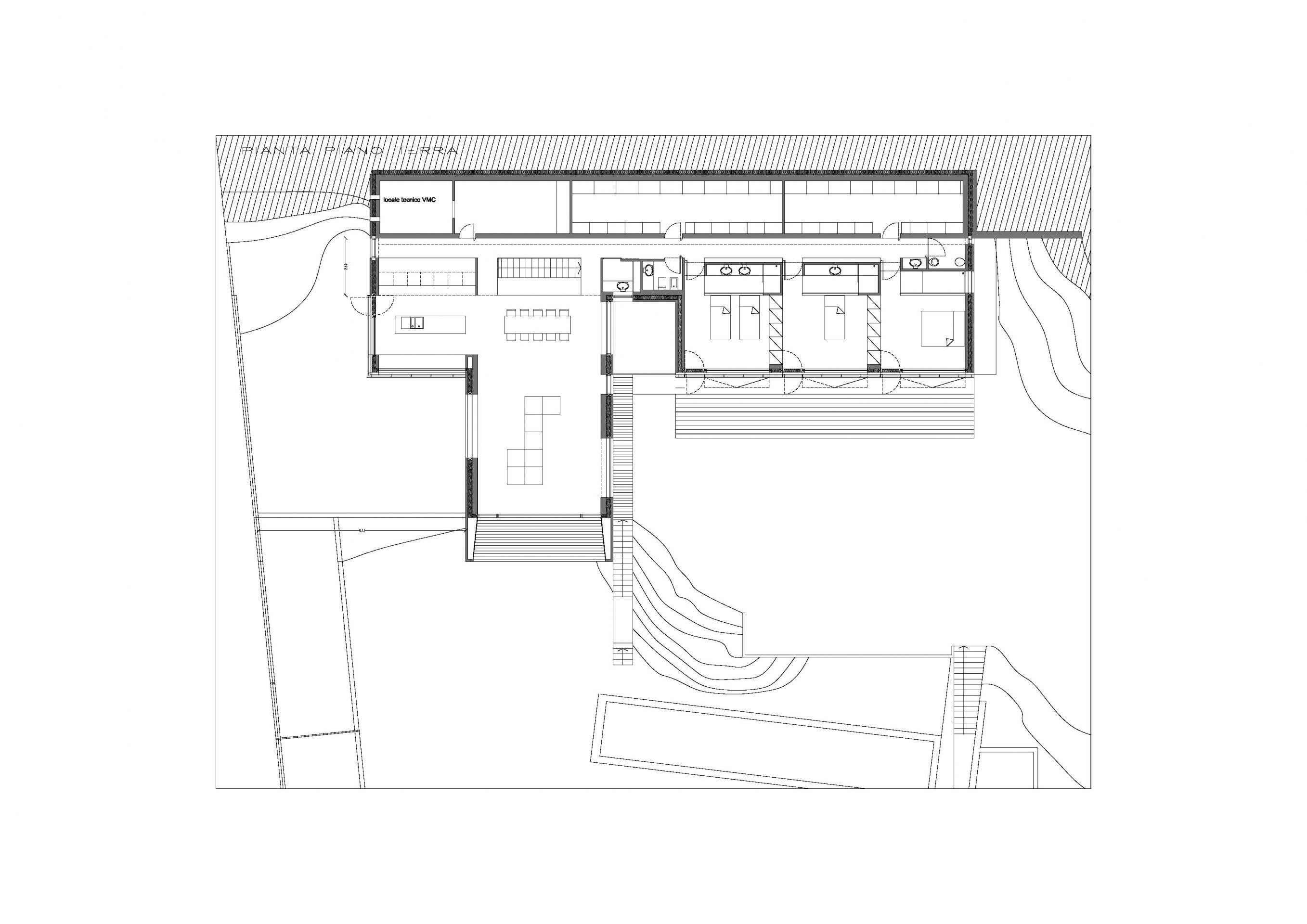
Typology:
House - Loft - Villa
Area:
Piemonte
Location per:
Foto - Video
Dimensione:
340 mq + 1300 mq di giardino
Piano:
terra + primo
Ascensore:
No
Accesso cinemobile:
No
KW:
11
Descrizione:
Situata tra le colline a pochi chilometri da Torino, la villa è stata pensata come combinazione di due semplici parallelepipedi, dove la zona living è quella più importante.
Style:
























































