Tipologia:
Casa - Loft
Area:
Entro 40 km da Milano
ZTL:
No
Location per:
Foto - Video
Dimensione:
150 mq
Piano:
terra e piano primo
Ascensore:
No
Accesso cinemobile:
No
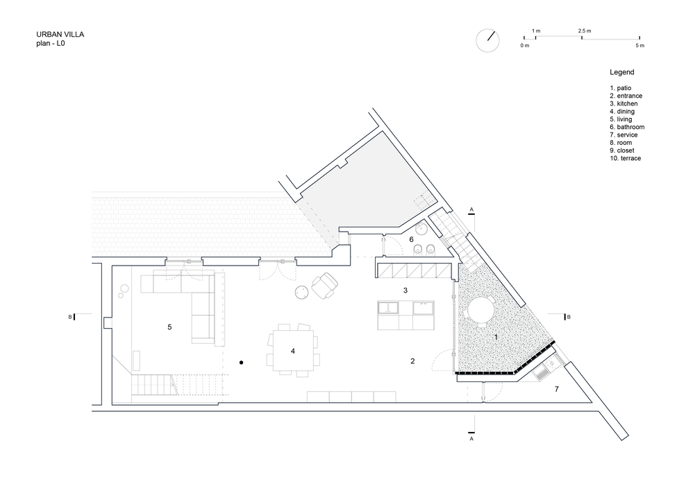
Descrizione:
Loft nato dalla conversione di un vecchio capannone industriale, al piano terra la zona living e al piano superiore la zona notte.
Stile:












































