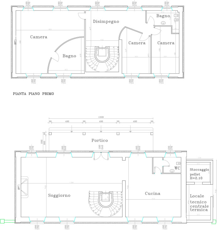
Tipologia:
Villa
Area:
Entro 40 km da Milano
Location per:
Evento - Foto - Video
Dimensione:
300mq + 3000mq giardino + 31mq portico
Piano:
0 +2
Ascensore:
Sì
Accesso cinemobile:
Sì
KW:
6
Descrizione:
Villa (ex cascina) arredata in stille classico con piscina e grande prato
Stile:
















































































